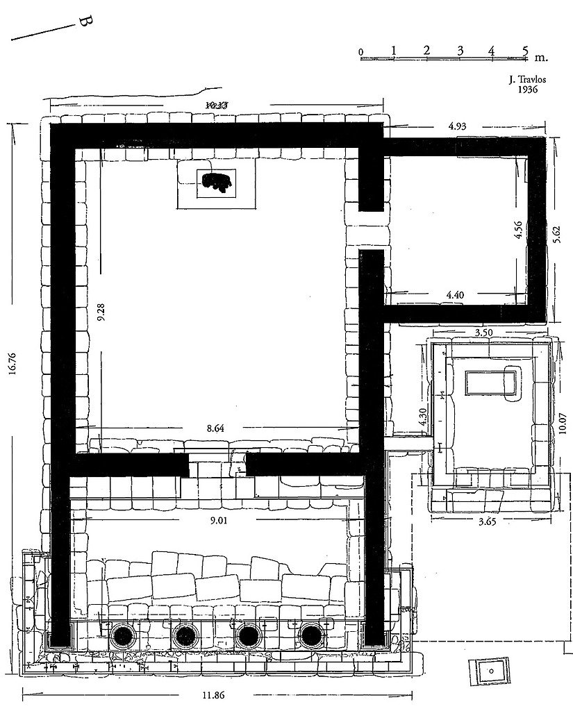
Image: 2008.20.0015Reconstructed plan of the Temple of Apollo Patroos, dating from the second half of the 4th century B.C.
image
Archive Number:   2008.20.0015
Title:   Reconstructed plan of the Temple of Apollo Patroos, dating from the second half of the 4th century B.C.
PD Number:   PD 5-2003
Bibliography:   AgoraPicBk 16 (2003), p. 10, fig. 10.
Rating:   4
References:   Publication: AgoraPicBk 16 (1976)
Drawing: PD 5-2003 (DA 12870)