| Name: | PD 5-2003 (DA 12870) | |
| PD: | PD 5-2003 | |
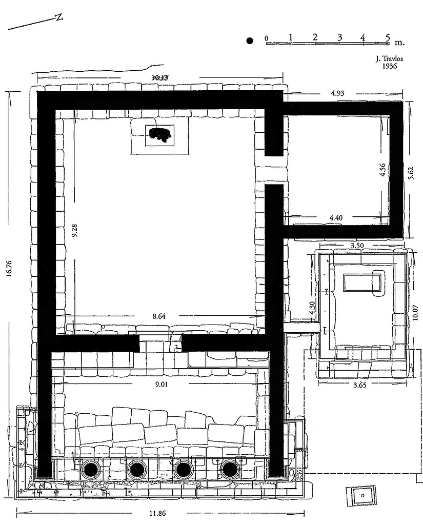
| Title: | Reconstructed plan of the Temple of Apollo Patroos, dating from the second half of the 4th century B.C. | |
| Artist: | J. Travlos | |
| Notes: | Version of PD 5 for Agora Picture Book 16. Greek and English. | |
| Negative: | 2008.20.0015 | |
| Bibliography: | AgoraPicBk 16 (2003), p. 10, fig. 10. | |
| Date: | 2003 1936 | |
| References: | Publication: AgoraPicBk 16 (1976) Image: 2008.20.0014 Image: 2008.20.0015 |