| Name: | PD 2324 (DA 818) | |
| PD: | PD 2324 | |
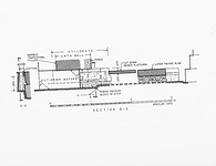
| Title: | Plan of the southwest corner of interior corner of Propylon - Acropolis. | |
| Artist: | W.B. Dinsmoor, Jr. | |
| Notes: | Annotated in pencil. | |
| Storage: | 40 | |
| Negative: | 88-78 | |
| Date: | 1975 | |
| References: | Image: 2012.59.0026 (88-78) |
|
References Sign in Provide feedback |
|