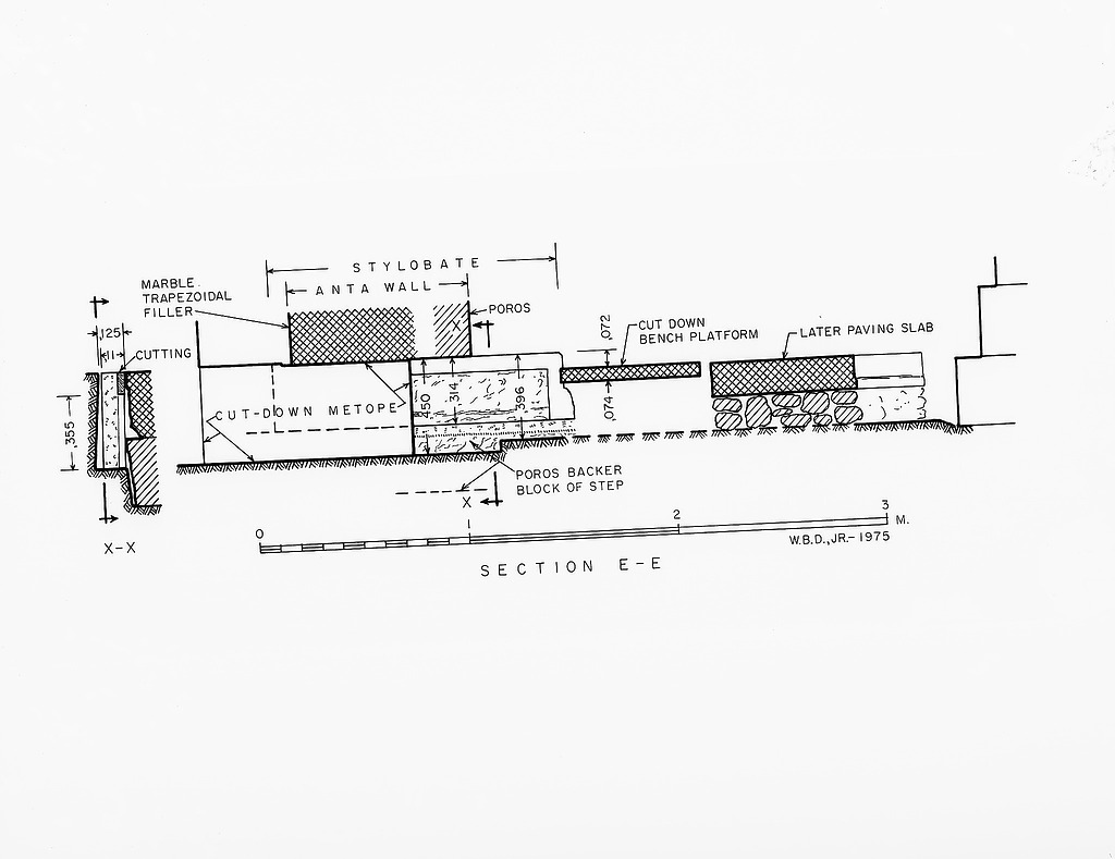
Image: 2012.59.0026 (88-78)Plan of the southwest corner of interior corner of Propylon - Acropolis.
image
Archive Number:   2012.59.0026
Title:   Plan of the southwest corner of interior corner of Propylon - Acropolis.
Negative:   88-78
PD Number:   PD 2324
Date:   1975
Rating:   2
References:   Drawing: PD 2324 (DA 817)
Drawing: PD 2324 (DA 818)