icon

[Agora Drawing] PD 2571 (DA 4577)

Restored plan of the Late Roman Complex ... John Travlos ... Scanned. DB: 92 (05/03/2001). Torn Dirty Heavy Tracing Paper Drafting Ink ... 1984

icon

[Agora Drawing] PD 1631 (DA 4584)

Restored drawing of the Giants facade of the Gymnasium, c. 400 A.D ... John Travlos ... Scanned. DB: 204. 87-490 87-490 Fragile Torn Dirty Repaired Light Tracing Paper Drafting Ink Pencil ... ca. 400 A.D.

icon

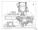
[Agora Drawing] PD 2570 (DA 4586)

Restored plan of the walls and foundations of the Palace of the Giants ... John Travlos ... Scanned. DB: 210. Fragile Torn Dirty Repaired Heavy Tracing Paper Drafting Ink ... 1984

icon

[Agora Drawing] PD 1631 (DA 4591)

Restored drawing of the Giants facade of the Gymnasium, c. 400 A.D ... John Travlos ... Scanned. DB: 204. 87-490 87-490 ... 1967

icon

[Agora Drawing] PD 2571 (DA 3816)

Restored plan of the Late Roman Complex ... John Travlos ... Scanned. DB: 92 (05/03/2001) ... 1984

icon

[Agora Drawing] PD 2570 (DA 3818)

Restored plan of the walls and foundations of the Palace of the Giants ... John Travlos ... Scanned. DB: 210 ... 1984

icon

[Agora Image] 1997.10.0068 (LVIII-7)

Southeast court, Room A, cleared to ca. 25 cm. above bedrock. At right, late tile burial underlying a paved floor. At left, martyra across entrance ... north ... 21 Apr 1953

icon

[Agora Image] 1997.10.0069 (LVI-100)

Late Roman remains overlying the northeast corner of the Middle Stoa ... southwest ... 10 April 1953