icon

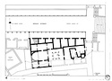
[Agora Drawing] PD 2429 (DA 405)

Complete state plan of sections ΡΡ and ΡΡ', showing periods and wells ... W.B. Dinsmoor, Jr ... See PDs 2089, 2308. f Fragile Torn Dirty Repaired Heavy Tracing Paper Drafting Ink ... 1978

icon

[Agora Drawing] PD 2429 (DA 3893)

Complete state plan of sections ΡΡ and ΡΡ', showing periods and wells ... W.B. Dinsmoor, Jr ... See PDs 2089, 2308. Faded Diazotype Printing Ink ... 1978

icon

[Agora Drawing] PD 2652 (DA 279)

Plan of yellow poros altar base under Stoa of Attalos terrace, north end ... Richard C. Anderson ... For Rhys Townsend. f Dirty Drafting Film Drafting Ink ... February 1991

[Agora Drawing] PD 2676 (DA 1676)

Basement plan of the Stoa of Attalos, showing find storage arrangement ... Partial: main part only - excluding terrace and north sections. Paper Printing Ink

icon

[Agora Drawing] PD 2651 (DA 3824)

Simplified state plan of the Stoa of Attalos, showing Agora deposits ... Richard C. Anderson ... Scanned. DB: 170. Oversize, scanned summer 2019. Drafting Film Drafting Ink ... 1991

icon

[Agora Drawing] PD 2123 (DA 300)

Partially restored state plan of the Library of Pantainos ... W.B. Dinsmoor, Jr ... 1 copy in Princeton f Fragile Dirty Faded Heavy Tracing Paper Drafting Ink ... 1971

icon

[Agora Drawing] PD 2272 (DA 317)

Site Plan of the Monopteros. Roman Building - Section Σ ... W.B. Dinsmoor, Jr ... 1 copy in Princeton (AE, 2024). f Dirty Heavy Tracing Paper Drafting Ink ... 1974

icon

[Agora Drawing] PD 2236 (DA 364)

Section ΡΡ Street Stoa - Ionic bases of lower colonnade ... W.B. Dinsmoor, Jr ... One copy in Princeton (PK 2024). f Fragile Drafting Film Drafting Ink Pencil ... 1973

icon

[Agora Drawing] PD 2238 (DA 366)

Section ΡΡ Street Stoa - Columns of lower order ... W.B. Dinsmoor, Jr ... 1 copy in Princeton (AE, 2024). f Fragile Drafting Film Drafting Ink Pencil ... 1973

icon

[Agora Drawing] PD 2250 (DA 375)

Restored elevation of the Street Stoa in the Late Roman Period ... W.B. Dinsmoor, Jr ... 1 copy with alterations in Princeton (AE, 2024). f Fragile Dirty Heavy Tracing Paper Drafting Ink ... 1973

icon

[Agora Drawing] PD 2277 (DA 379)

State section through Room 7 and colonnade. Section ΡΡ ... W.B. Dinsmoor, Jr ... Taken from Section F, PD 2181. Stoa and Classical Shops. N.-S. section looking east through Roman Room 7. Two copies in Princeton (PK 2024). f Fragile Drafting Film Drafting Ink Pencil ... 1974

icon

[Agora Drawing] PD 2277 (DA 380)

State section through Room 7 and colonnade. Section ΡΡ ... W.B. Dinsmoor, Jr ... Taken from Section F, PD 2181. Stoa and Classical Shops. N.-S. section looking east through Roman Room 7. Diazotype Drafting Ink Pen ... 1974

[Agora Drawing] PD 2123 (DA 344)

Partially restored state plan of the Library of Pantainos ... W.B. Dinsmoor, Jr ... 1971

icon

[Agora Drawing] PD 2329 (DA 395)

East-west section of the Library of Pantainos ... W.B. Dinsmoor, Jr ... f Fragile Drafting Film Drafting Ink ... 1975

icon

[Agora Drawing] PD 2566 (DA 407)

Broad Street and building over the Library of Pantainos ... John Travlos ... Refer to PD 2343. f Fragile Drafting Film Drafting Ink Pencil ... 1982

icon

[Agora Drawing] PD 272 (DA 282)

Actual state plan of the Library of Pantainos ... John Travlos ... Cf. PD 560. For earlier version, see PD 609. f Fragile Dirty Cartridge Paper Drafting Ink ... 1946

icon

[Agora Drawing] PD 274 (DA 286)

Valerian wall in front of the Library of Pantainos ... Charles S. Spector ... f Fragile Dirty Cartridge Paper Drafting Ink Pencil ... 1933

icon

[Agora Drawing] PD 275 (DA 287)

Several sections of the Library of Pantainos ... John Travlos ... f Dirty Cartridge Paper Drafting Ink ... 1946

icon

[Agora Drawing] PD 276 (DA 288)

Base of monument between the Stoa of Attalos and the Library of Pantainos ... John Travlos ... f Dirty Cartridge Paper Drafting Ink ... 1946

icon

[Agora Drawing] PD 277 (DA 289)

Two sections of the above monument (PD 276) ... John Travlos ... f Dirty Cartridge Paper Drafting Ink ... 1946

icon

[Agora Drawing] PD 278 (DA 290)

Dedicatory inscription of the Library of Pantainos ... John Travlos ... f Fragile Dirty Cartridge Paper Drafting Ink ... 1946

icon

[Agora Drawing] PD 279 (DA 292)

Details of column and entablature of the Library of Pantainos ... John Travlos ... f Dirty Cartridge Paper Drafting Ink ... 1946

icon

[Agora Drawing] PD 280 (DA 293)

Detail of anta and entablature of the Library of Pantainos ... John Travlos ... f Dirty Cartridge Paper Drafting Ink ... 1946

icon

[Agora Drawing] PD 609 (DA 294)

Actual state plan of the Library of Pantainos ... Charles S. Spector Arthur W. Parsons ... Earlier version of PD 272. f Fragile Torn Dirty Repaired Cartridge Paper Drafting Ink Pencil ... 1933

icon

[Agora Image] 2002.01.2022

Plan of the area between the Stoa of Attalos and the Library of Pantainos, with the Post-Herulian Wall and Roman Monument foundations ... W.B. Dinsmoor, Jr ... PD 2022 Horizontal (normal) ... 1971

icon

[Agora Image] 2002.01.2429

Complete state plan of sections ΡΡ and ΡΡ', showing periods and wells ... W.B. Dinsmoor, Jr ... PD 2429 ... 1978

icon

[Agora Drawing] PD 2330 (DA 3892)

State Plan of a partially restored Library of Pantainos, stoas, etc. in Sections ΡΡ, ΡΡ', and Ι in all periods ... W.B. Dinsmoor, Jr ... Replaces PD 2168. Oversize, scanned summer 2019. Fragile Torn Heavy Tracing Paper Drafting Ink ... 1976

icon

[Agora Drawing] PD 2566 (DA 3810)

Broad Street and building over the Library of Pantainos ... John Travlos ... Refer to PD 2343 ... 1982

icon

[Agora Drawing] PD 1219 (DA 250)

Actual state of buildings below Square Peristyle ... John Travlos ... 83-278 83-278 Dirty Diazotype Printing Ink ... 1962

icon

[Agora Drawing] PD 1221 (DA 252)

Restored plan of the Square Peristyle ... John Travlos ... 83-280 83-280 f Fragile Torn Dirty Faded Heavy Tracing Paper Drafting Ink ... 1962

icon

[Agora Drawing] PD 1219 (DA 3835)

Actual state of buildings below Square Peristyle ... John Travlos ... 83-278 88-496 83-278 88-496 Torn EdgesDirty Heavy Tracing Paper Drafting Ink ... 1962

icon

[Agora Drawing] PD 1209 (DA 247)

Actual state plan of earlier buildings beneath the Stoa of Attalos ... John Travlos ... 83-214 86-503 87-553 83-214 86-503 87-553 f Fragile Torn Dirty Repaired Heavy Tracing Paper Drafting Ink ... 1974

icon

[Agora Drawing] PD 1209 (DA 10726)

Actual state plan of earlier buildings beneath the Stoa of Attalos ... John Travlos ... Related to DA 247 83-214 86-503 87-553 83-214 86-503 87-553 Dirty Diazotype Printing Ink ... 1974

icon

[Agora Drawing] PD 1209-2003 (DA 13325)

Plan of the lawcourts under the north end of the Stoa of Attalos. (5th–4th centuries B.C.) ... John Travlos ... English version of PD 1209 for the Agora Picture Book 16 (2003). Linked drawing same as 2008.20.0065 ... 2003 1974

icon

[Agora Drawing] PD 1209-2010 (DA 13327)

Plan of early buildings (law courts?) under the north end of the Stoa of Attalos ... John Travlos ... Revised version of PD 1209, see 2002.01.1209 ... 2010 1974

icon

[Agora Drawing] PD 2246 (DA 374)

Partially restored plan of Greek buildings in section ΡΡ. Plan of remains plus restored walls ... W.B. Dinsmoor, Jr ... Classical Shops beneath Stoa. Restored Plan as of mid-4th Century B.C. with earlier and later alterations. Replaced by PD 2328. 87-416 87-416 f Fragile Drafting Film Drafting Ink Pencil ... 1973

icon

[Agora Drawing] PD 2328 (DA 394)

Partially restored plan of the Greek buildings in section ΡΡ ... W.B. Dinsmoor, Jr ... Replaces PD 2246. f Fragile Dirty Faded Heavy Tracing Paper Drafting Ink Pencil ... 1975

icon

[Agora Drawing] PD 1220 (DA 251)

Actual state plan of the Square Peristyle ... John Travlos ... 83-279 83-279 f Dirty Heavy Tracing Paper Drafting Ink ... 1962

icon

[Agora Drawing] PD 1222 (DA 253)

Restoration of courts below the Square Peristyle ... John Travlos ... 83-283 83-283 Dirty Diazotype Printing Ink ... 1962

icon

[Agora Drawing] PD 1222 (DA 254)

Restoration of courts below the Square Peristyle ... John Travlos ... Earlier version. Not to scan 83-283 83-283 ... 1962