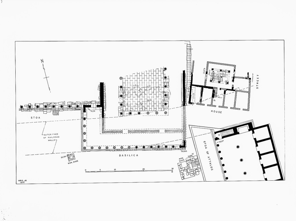
Image: 2012.59.0503 (88-513)Partially restored plan of the 'Basilica' and the Roman House ε. Scale 1:100.
image
Archive Number:   2012.59.0503
Title:   Partially restored plan of the 'Basilica' and the Roman House ε. Scale 1:100.
Negative:   88-513
PD Number:   PD 2118
Photographer:   W.B. Dinsmoor, Jr.
Date:   1971
Bibliography:   Guide (1990), p. 99, fig. 54.
    Hesperia 42 (1973), p. 135, fig. 2.
Rating:   2
Section:   ΒΔ
Storage:   Drawer 1
References:   Publication: Hesperia 42 (1973)
Plans and Drawings (4)
Image: 1997.01.0012 (88-513)