| Archive Number: | 2012.59.0460 | |
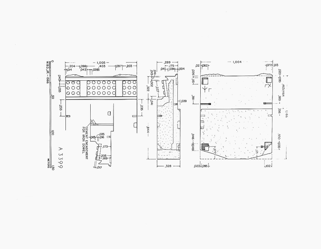
| Title: | Geison block. Plans and elevations. | |
| Negative: | 88-479 | |
| PD Number: | PD 1555 | |
| Photographer: | W.B. Dinsmoor, Jr. | |
| Date: | 1966 | |
| Bibliography: | Agora XXVII, p. 129, ill. 24 (Arch48). | |
| Rating: | 1 | |
| Section: | ΜΣ | |
| Storage: | Drawer 12 | |
| References: | Publication: Agora XXVII Drawing: PD 1555 (DA 264) Image: 1997.12.0252 (88-479) Object: A 3399 |