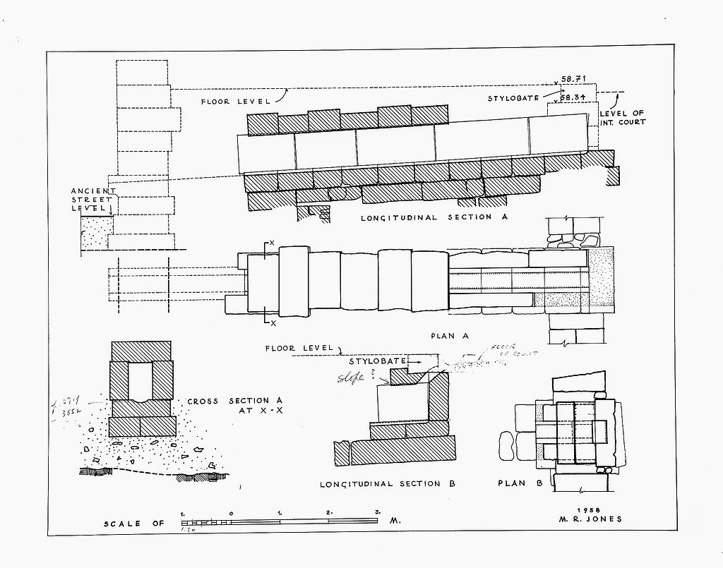
Image: 2012.59.0449 (88-468)Plan and sections of drains. 1:15.
image
Archive Number:   2012.59.0449
Title:   Plan and sections of drains. 1:15.
Negative:   88-468
PD Number:   PD 971
Photographer:   M.R. Jones
Date:   1958
Bibliography:   Agora XXVII, p. 64, ill. 6.
Rating:   2
Section:   ΣΑ
Storage:   Drawer 12
References:   Publication: Agora XXVII
Drawing: PD 971 (DA 239)
Image: 1997.12.0264 (88-468)