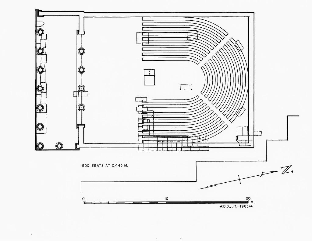
Image: 2012.59.0306 (88-365)New Bouleuterion. Alternate scheme for curved seating, facing south, ca. 415-406 B.C. Restored plan superimposed over actual remains.
image
Archive Number:   2012.59.0306
Title:   New Bouleuterion. Alternate scheme for curved seating, facing south, ca. 415-406 B.C. Restored plan superimposed over actual remains.
Negative:   88-365
PD Number:   PD 2549
Photographer:   W.B. Dinsmoor, Jr.
Date:   1983-1984
Bibliography:   Guide (2010), p. 59, fig. 28.
    Guide (1990), p. 62, fig. 28.
    Camp (1986), p. 91, fig. 67.
Rating:   2
Section:   ΟΕ
Storage:   Drawer 3
References:   Drawing: PD 2549 (DA 4110)
Drawing: PD 2549 (DA 13505)
Image: 1997.03.0395 (88-365)