| Archive Number: | 2012.56.0838 | |
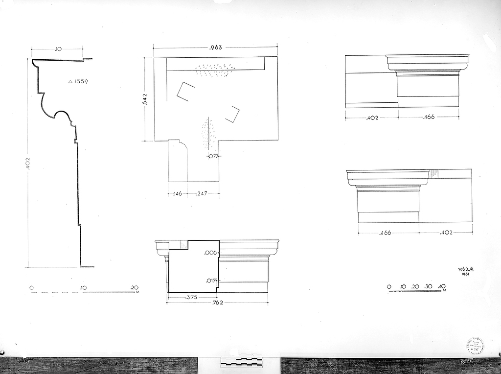
| Title: | Pier capital, section 1:1. Top plan and three elevations, 1:5. | |
| Negative: | 83-121 | |
| PD Number: | PD 1175 | |
| Photographer: | W.B. Dinsmoor, Jr. | |
| Date: | 1961 | |
| Bibliography: | Hesperia 39 (1970), p. 247, fig. 5. | |
| Rating: | 1 | |
| Section: | Σ | |
| Storage: | Drawer 21 | |
| References: | Publication: Hesperia 39 (1970) Drawing: PD 1175 (DA 2061) Image: 1997.01.0243 (83-121) Object: A 1559 |