| Archive Number: | 2011.04.0084 | |
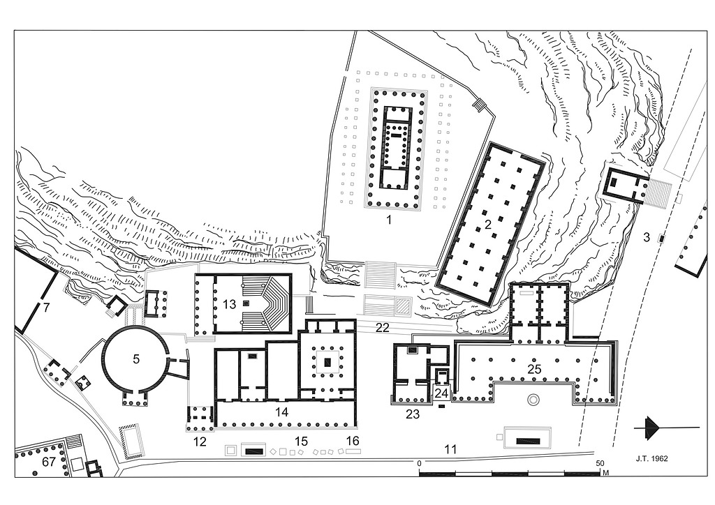
| Title: | Buildings along the west side of the Agora. | |
| PD Number: | PD 1208-2010 | |
| Date: | 24 Oct 2009 | |
| Bibliography: | Guide (2010), p. 43, fig. 18. | |
| Rating: | 2 |
|
Show All Results (1,017) Publications (23) Reports (19) Monument (1) Plans and Drawings (108) Images (725) Objects (2) Classifications Sign in Provide feedback |
|