| Archive Number: | 2011.04.0054 | |
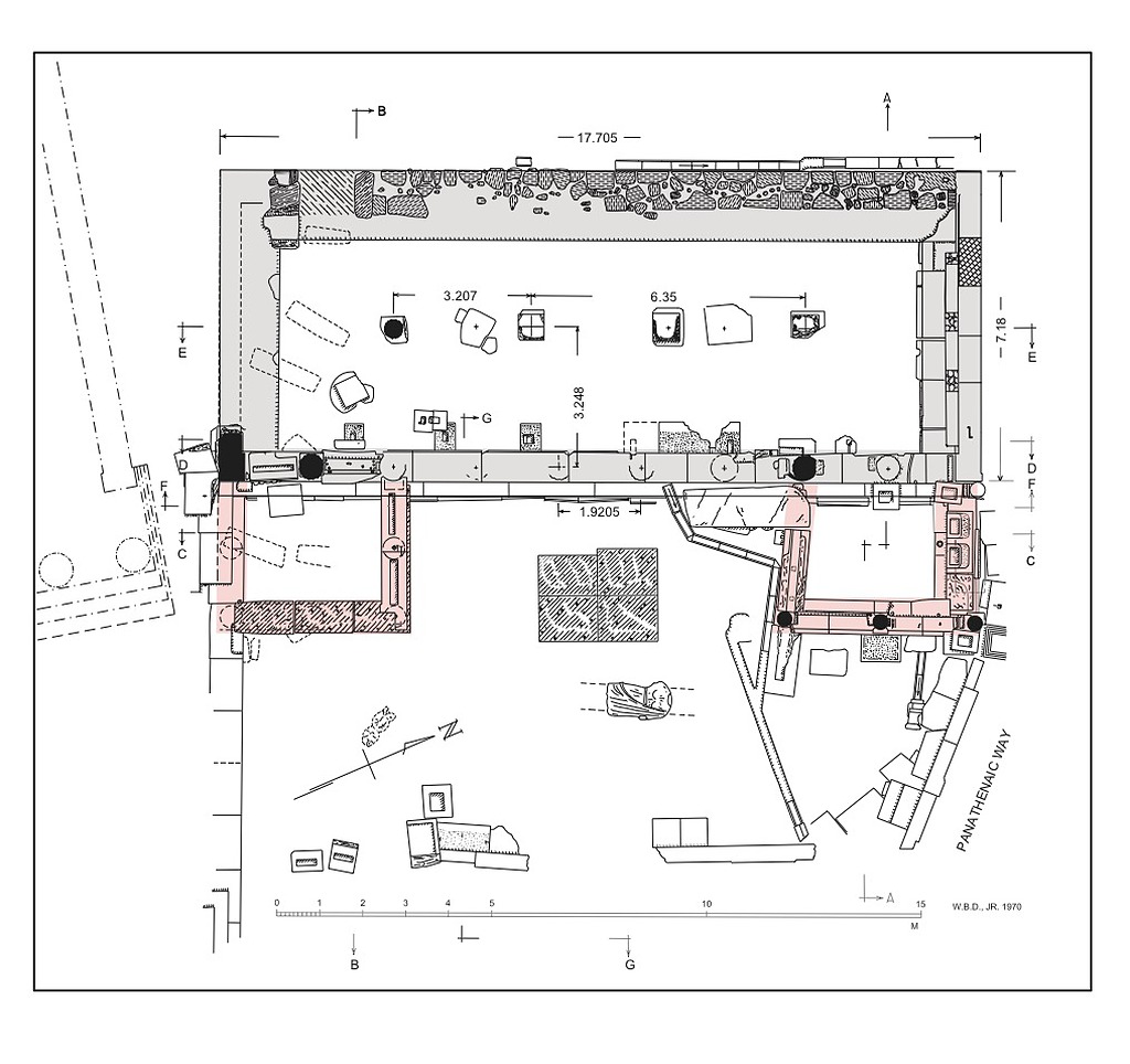
| Title: | Actual state plan of the Royal Stoa. The small columnar wings added later are highlighted in light red. | |
| PD Number: | PD 1983-2010 | |
| Date: | 24 Oct 2009 | |
| Bibliography: | Guide (2010), p. 77, fig. 44. | |
| Rating: | 3 | |
| References: | Monument: Royal Stoa Drawing: PD 1983-2010 (DA 13295) |