| Archive Number: | 2002.01.2767 | |
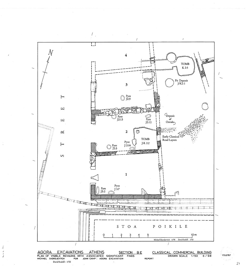
| Title: | Classical Commercial Building, section ΒΕ. Plan of visible remains with associated significant finds. For John Camp 1996-1998 Report. | |
| PD Number: | PD 2767 | |
| Photographer: | M.D.D. | |
| Date: | 1998 | |
| Bibliography: | Hesperia 68 (1999), p. 275, fig. 24. | |
| Rating: | 1 | |
| References: | Publication: Hesperia 68 (1999) Drawing: PD 2767 (DA 2457) Drawing: PD 2767 (DA 2497) |