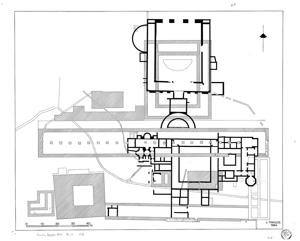
Image: 2002.01.2570Restored plan of the walls and foundations of the Palace of the Giants.
image
Archive Number:   2002.01.2570
Title:   Restored plan of the walls and foundations of the Palace of the Giants.
PD Number:   PD 2570
Photographer:   J. Travlos
Date:   1984
Bibliography:   Agora XXIV, pl. 53.
Rating:   1
References:   Publication: Agora XXIV
Publication Page: Agora 24, s. 234
Drawing: PD 2570 (DA 4586)
Drawing: PD 2570 (DA 3818)