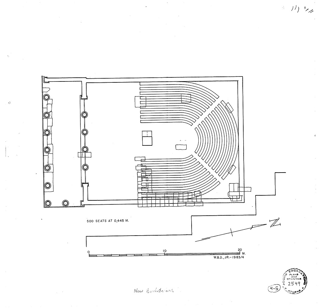
Image: 2002.01.2549Plan of the New Bouleuterion, with an alternate scheme for curved seating facing south.
image
Archive Number:   2002.01.2549
Title:   Plan of the New Bouleuterion, with an alternate scheme for curved seating facing south.
PD Number:   PD 2549
Photographer:   W.B. Dinsmoor, Jr.
Date:   1983
Bibliography:   Camp (1986), p. 91, fig. 67.
Rating:   1
References:   Monument: Bouleuterion
Drawing: PD 2549 (DA 4110)
Drawing: PD 2549 (DA 13505)