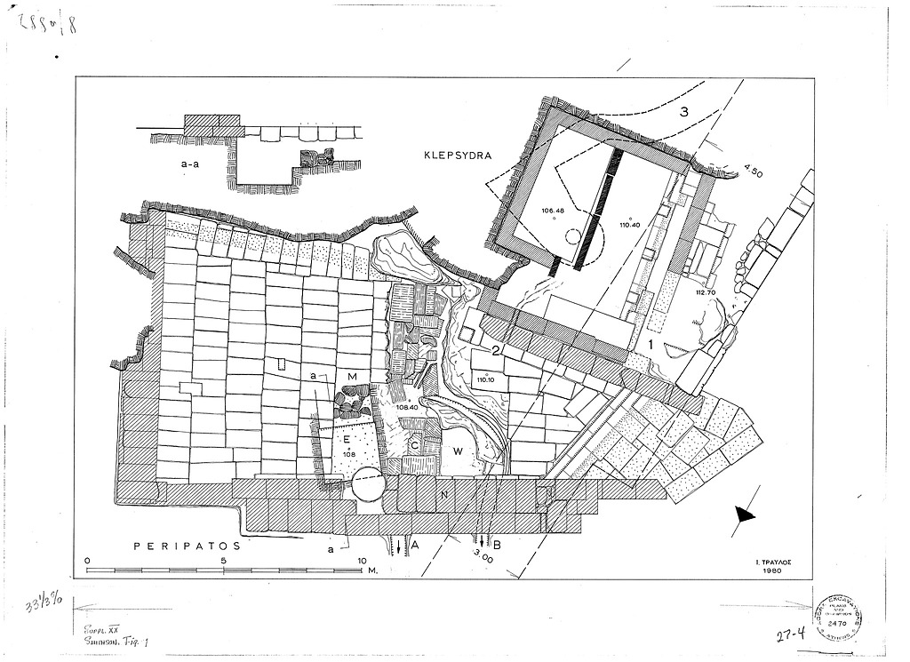
Image: 2002.01.2470Plan of the Klepsydra, showing early cuttings beneath the paved court and section of east cutting.
image
Archive Number:   2002.01.2470
Title:   Plan of the Klepsydra, showing early cuttings beneath the paved court and section of east cutting.
PD Number:   PD 2470
Photographer:   J. Travlos
Date:   1980
Rating:   1
References:   Drawing: PD 2470 (DA 3454)
Drawing: PD 2470 (DA 3455)