| Archive Number: | 2002.01.1363 | |
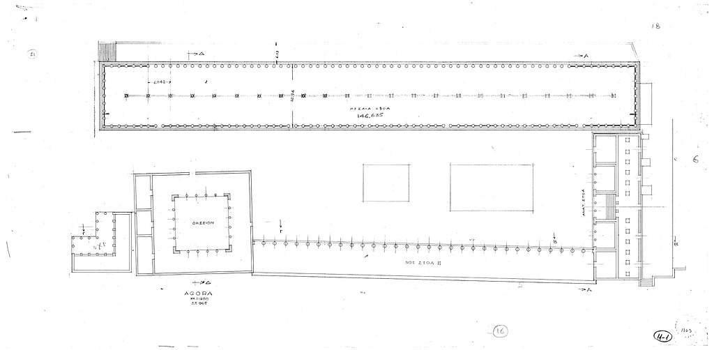
| Title: | Restored plan of the South side of the Agora: Middle Stoa, East Building, South Stoa II, Heliaia, and Southwest Fountain House | |
| PD Number: | PD 1363 | |
| Photographer: | J. Travlos | |
| Date: | 1965 | |
| Rating: | 1 | |
| References: | Places and Monuments (5) Drawing: PD 1363 (DA 4790) |