| Archive Number: | 2002.01.0034 | |
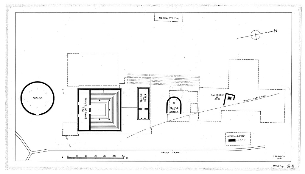
| Title: | Pre-Persian buildings of the west side of the Agora. | |
| PD Number: | PD 34 | |
| Date: | 1936 | |
| Bibliography: | Hesperia 6 (1937), p. 133, fig. 72. | |
| Rating: | 1 | |
| References: | Publication: Hesperia 6 (1937) Drawing: PD 34 (DA 4103) |
|
Show All Results (1,017) Publications (23) Reports (19) Monument (1) Plans and Drawings (108) Images (725) Objects (2) Classifications Sign in Provide feedback |
|