| Archive Number: | 2002.01.0002 | |
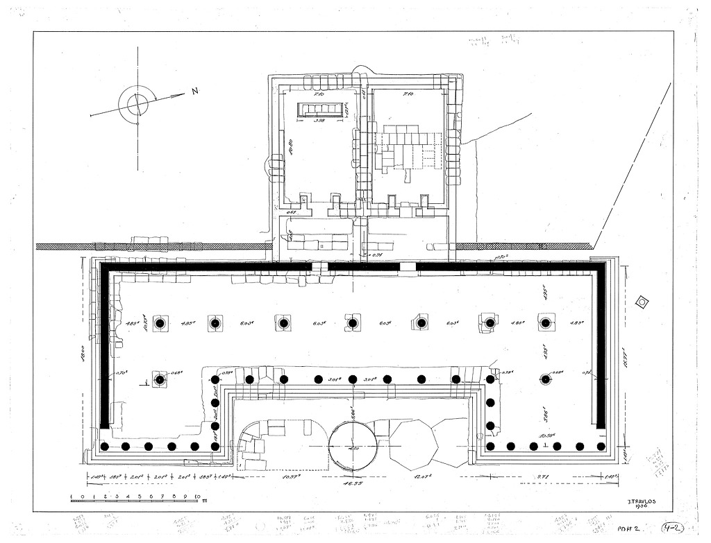
| Title: | Restored plan of the Stoa of Zeus Eleftherios. | |
| PD Number: | PD 2 | |
| Date: | 1936 | |
| Bibliography: | Hesperia 6 (1937), pl. II. | |
| Rating: | 1 | |
| Section: | Α | |
| References: | Publication: Hesperia 6 (1937) Drawing: PD 2 (DA 4152) |
|
Show Everything (374,112) Publications (2,251) Reports (80) Plans and Drawings (11,611) Images (154,235) Objects (47,175) Coins (4,631) Deposits (1,715) Classifications Sign in Provide feedback |
|