| Archive Number: | 2002.01.0001 | |
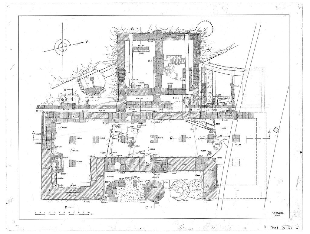
| Title: | Actual state plan of the Stoa of Zeus. | |
| PD Number: | PD 1-1936 | |
| Date: | 1936 | |
| Rating: | 1 | |
| Section: | Α | |
| References: | Drawing: PD 1-1936 (DA 4151) Drawing: PD 1-1936 (DA 4191) |
|
Show Everything (374,112) Publications (2,251) Reports (80) Plans and Drawings (11,611) Images (154,235) Objects (47,175) Coins (4,631) Deposits (1,715) References Classifications Sign in Provide feedback |
|