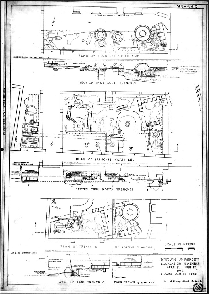
Image: 1997.15.0083 (84-445)Detailed plan of excavation: Trenches in Coletti Garden.
image
Archive Number:   1997.15.0083
Title:   Detailed plan of excavation: Trenches in Coletti Garden.
Negative:   84-445
PD Number:   PD 1415
Photographer:   Elise du Pont Elrick
Date:   1965
Rating:   1
Section:   ΠΑ
Storage:   Drawer 15
References:   Drawing: PD 1415 (DA 418)
Image: 2012.57.0382 (84-445)