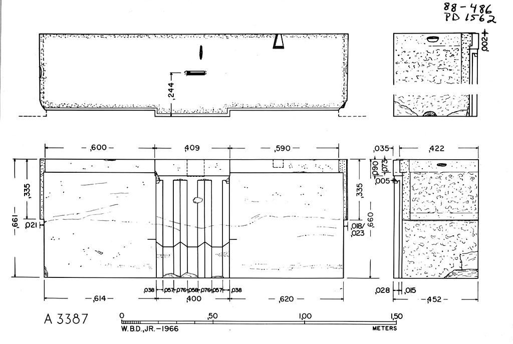
Image: 1997.12.0258 (88-486)Frieze block. Plan and elevations. Cf. Agora XXVII, 1995, p. 123, ill. 19 (Arch37) with revised version by R. C. Anderson, 1994.
image
Archive Number:   1997.12.0258
Title:   Frieze block. Plan and elevations. Cf. Agora XXVII, 1995, p. 123, ill. 19 (Arch37) with revised version by R. C. Anderson, 1994.
Negative:   88-486
PD Number:   PD 1562
Photographer:   W.B. Dinsmoor, Jr.
Date:   1966
Rating:   1
Section:   ΒΒ
Storage:   Drawer 12
References:   Drawing: PD 1562 (DA 271)
Image: 2012.59.0467 (88-486)
Object: A 3387