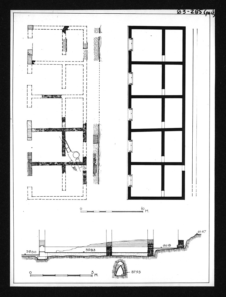
Image: 1997.12.0111 (83-285)Actual state plan, section and restoration. Scale 1:100.
image
Archive Number:   1997.12.0111
Title:   Actual state plan, section and restoration. Scale 1:100.
Negative:   83-285
PD Number:   PD 1218
Photographer:   John Travlos
Date:   1962
Rating:   1
Section:   ΣΑ
Storage:   Drawer 12
References:   Drawing: PD 1218 (DA 249)
Image: 2012.56.1003 (83-285)
Image: 1997.12.0203 (83-285)