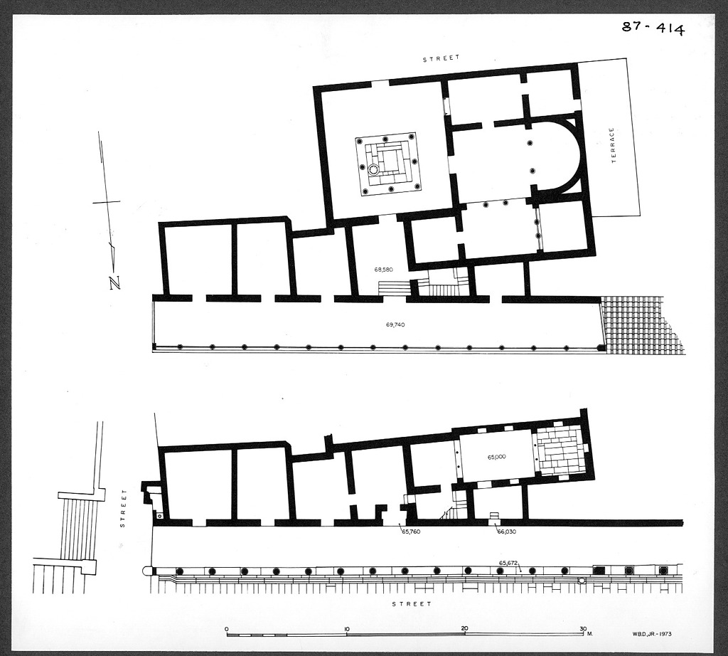
Image: 1997.11.0008 (87-414)Restored plans of the "Street Stoa" and the Late Roman Building with the apsidal hall.
image
Archive Number:   1997.11.0008
Title:   Restored plans of the "Street Stoa" and the Late Roman Building with the apsidal hall.
Negative:   87-414
PD Number:   PD 2243
Photographer:   W.B. Dinsmoor, Jr.
Date:   1973
Bibliography:   Hesperia 44 (1975), p. 334, fig. 1.
Rating:   1
Section:   ΡΡ
Storage:   Drawer 11
References:   Publication: Hesperia 44 (1975)
Drawing: PD 2243 (DA 371)
Image: 2012.58.1099 (87-414)