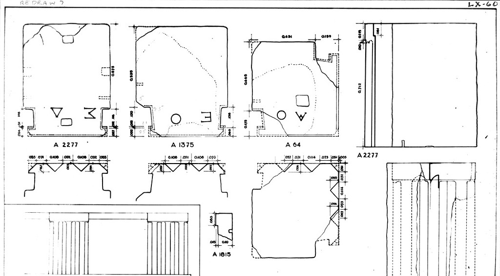
Image: 1997.10.0386 (LX-60)Plans, sections, and elevations of triglyphs and a reconstruction of the frieze. Cf. Hesperia 28 (1959), pp. 18-19, figs. 9 and 10 for a revised version made in 1958 by Ms. Holland.
image
Archive Number:   1997.10.0386
Title:   Plans, sections, and elevations of triglyphs and a reconstruction of the frieze. Cf. Hesperia 28 (1959), pp. 18-19, figs. 9 and 10 for a revised version made in 1958 by Ms. Holland.
Negative:   LX-60
PD Number:   PD 776-1953
Photographer:   M.R. Holland
Date:   1953
Rating:   1
Section:   Ε
    ΚΤΛ
Storage:   Drawer 10
References:   Drawing: PD 776-1953 (DA 4509)
Image: 2012.53.1155 (LX-60)
Object: A 64
Object: A 1375
Object: A 2277