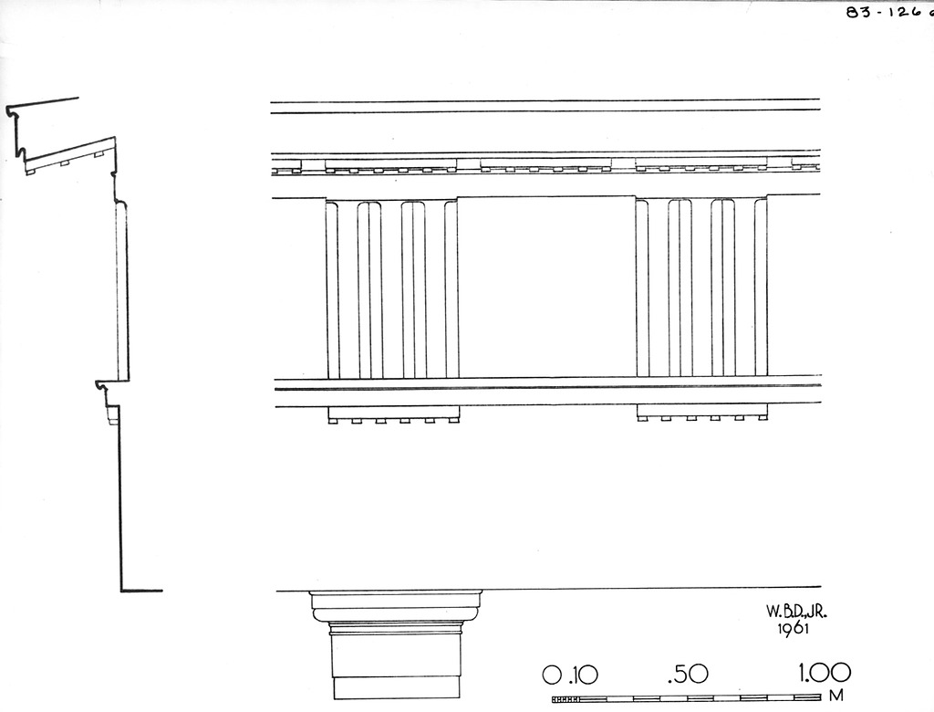
Image: 1997.01.0246 (83-126)Reconstructed entablature, section and elevation. Scale 1:10.
image
Archive Number:   1997.01.0246
Title:   Reconstructed entablature, section and elevation. Scale 1:10.
Negative:   83-126
PD Number:   PD 1176
Photographer:   W.B. Dinsmoor, Jr.
Date:   1961
Bibliography:   Hesperia 39 (1970), p. 254, fig. 6.
Rating:   1
Section:   ΒΕ
Storage:   Drawer 21
References:   Publication: Hesperia 39 (1970)
Drawing: PD 1176 (DA 2058)
Image: 1997.09.0337 (83-126)
Image: 2012.56.0843 (83-126)