| Name: | PD 2675 (DA 4123) | |
| PD: | PD 2675 | |
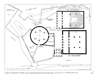
| Title: | Restored plan of the Tholos/Bouleuterion area in the early 3rd century B.C. | |
| Artist: | Richard C. Anderson | |
| Notes: | Scanned. DB: 45 (05/03/2001). | |
| Storage: | 4 | |
| Date: | 1992 | |
| References: | Image: 2002.01.2675 |
|
References Classifications Sign in Provide feedback |
|