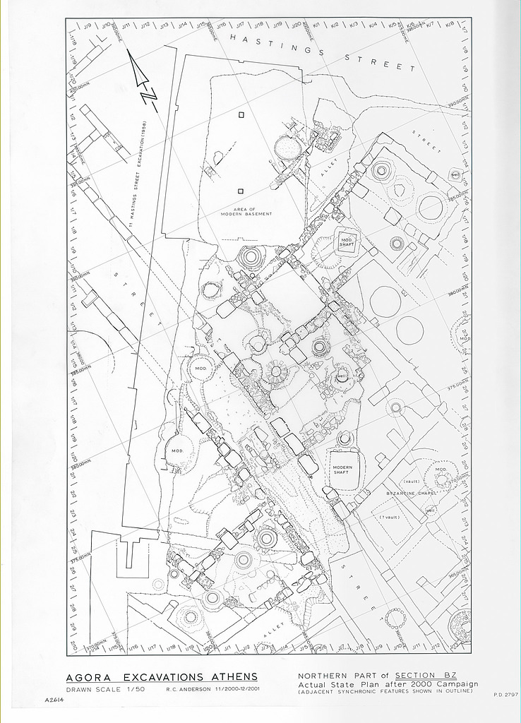
Drawing: PD 2797 (DA 2614)Actual state plan of the northern part of section ΒΖ after the 2000 excavation season (adjacent synchronic features shown in outline).
image
Name:   PD 2797 (DA 2614)
PD:   PD 2797
Title:   Actual state plan of the northern part of section ΒΖ after the 2000 excavation season (adjacent synchronic features shown in outline).
Artist:   Richard C. Anderson
Storage:   22
Date:   February 2001
Section:   ΒΖ
References:   Image: 2002.01.2797