| Name: | PD 2742 (DA 2587) | |
| PD: | PD 2742 | |
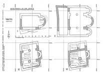
| Title: | ΒΗ Church: plan showing four phases of development. | |
| Artist: | Richard C. Anderson | |
| Notes: | For T. L. Shear 1989-1993 Excavation Report. Drawn 1:50, Print 1:200. | |
| Storage: | 21 | |
| Period: | Byzantine | |
| Bibliography: | Hesperia 66 (1997), p. 540, fig. 12. | |
| Date: | August 1996 | |
| References: | Publication: Hesperia 66 (1997) Image: 2002.01.2742 |