| Name: | PD 2767 (DA 2457) | |
| PD: | PD 2767 | |
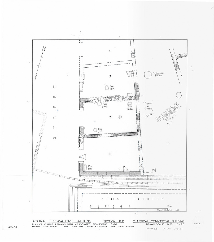
| Title: | Classical Commercial Building, Section ΒΕ. Plan of visible remains with associated significant finds. For John Camp 1996-1998 Report. | |
| Artist: | Michael Djordjevitch | |
| Storage: | 21-1 | |
| Material: | Drafting Film | |
| Medium: | Drafting Ink | |
| Size Sheet: | 0.54 x 0.60 | |
| Scale: | 1:50 | |
| Bibliography: | Hesperia 68 (1999), p. 275, fig. 24. | |
| Date: | June 1998 | |
| Section: | ΒΕ | |
| References: | Publication: Hesperia 68 (1999) Image: 1998.01.0002 Image: 2002.01.2767 |