| Name: | PD 1983 (DA 2290) | |
| PD: | PD 1983 | |
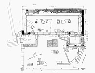
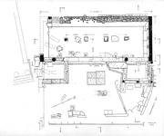
| Title: | State plan of the Royal Stoa. | |
| Artist: | W.B. Dinsmoor, Jr. | |
| Storage: | 19 | |
| Negative: | 87-417 | |
| Bibliography: | Guide (1990), p. 80, fig. 41. | |
| Camp (1986), p. 55, fig. 36. | ||
| Hesperia 40 (1971), p. 245, fig. 1. | ||
| Date: | 1970 | |
| References: | Publication: Hesperia 40 (1971) Images (4) |