| Name: | PD 5-2010 (DA 12871) | |
| PD: | PD 5-2010 | |
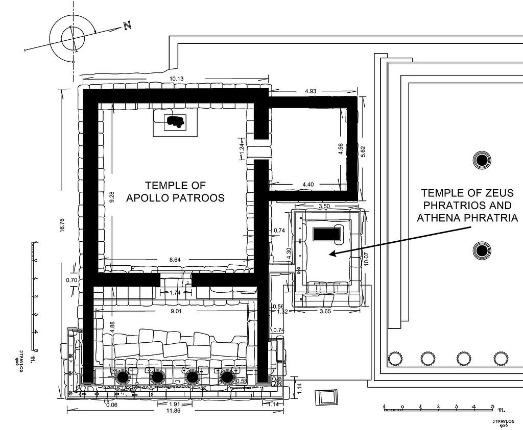
| Title: | Plan of the Temple of Apollo Patroos, last quarter of the 4th century B.C., with the tiny Temple of Zeus Phratrios and Athen Phratria (?) to the north. | |
| Artist: | J. Travlos | |
| Notes: | Version of PD 5. | |
| Negative: | 2011.04.0053 | |
| Bibliography: | Guide (2010), p. 71, fig. 40. | |
| Date: | 2010 1936 | |
| References: | Image: 2011.04.0053 |