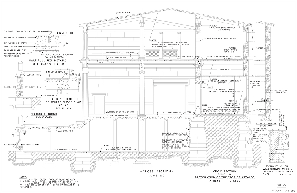
Drawing: DA 12668Stoa of Attalos Reconstruction Project. Cross Section.
image
Name:   DA 12668
Title:   Stoa of Attalos Reconstruction Project. Cross Section.
Artist:   W.S. Thompson
    P. Barnum
Notes:   Cleaned version of DA 1635.
For Craig Mauzy, January 2016.
Negative:   2016.02.0002
Date:   1953